nos actus
Nos actualités

Découvrez les projets gagnants de la collab avec IKEA!

Publié le:
05-03-2019
Partager :

Les étudiants en architecture d'intérieur à Art'Com Sup Rabat et Casablanca ont présenté leurs projets finaux le Mercredi 27 Mars dernier devant un jury composé de représentants d'Art'Com Sup ainsi que de IKEA, dans le cadre de la collaboration qui a lié les deux entités sous le thème "Aménagement d'un Pop Up Store".

A l'issue de cette présentation, trois groupes se sont clairement démarqués et on respectivement raflé le première, le deuxième et le troisième prix:

  • Abderrahmane Sarir & Kaoutar R'hiati & Ahmed Quibane
  • Saloua Nacer & Ahlam Khabiri & Arnaud Duncan & Roland Idriss
  • Abdelhaq El Rhabali & Abla Mouline

Pour rappel, l'objectif de la collaboration entre Art'Com Sup et IKEA était de réaliser un Pop Up Store par les étudiants en architecture d'intérieur à Rabat et à Casablanca.

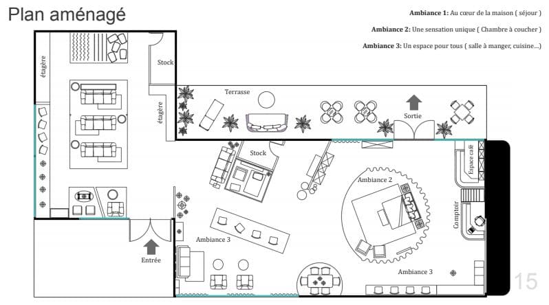
Le Pop Up Store ou encore boutique éphémère, est une installation temporaire ne faisant pas partie du magasin original. C'est une approche communément utilisée afin de donner une idée au consommateur sur le résultat final que ses achats peuvent lui donner. Ces magasins temporaires ont d'habitude pour objectif de mettre le client en situation réelle de consommation mais aussi de travailler sur la notoriété (brand awareness) de la structure.

A cet effet, les étudiants ont dû retravailler l'espace leur étant attribué de façon à mettre en valeur certaines variétés de produits qui peuvent intéresser le client plus que d'autres. La finalité a été de créer un espace commercial mais surtout convivial, semblable à une exposition épurée où la vedette est donnée aux petits produits.

Voici en images les travaux de certains groupes gagnants :

Félicitations à tous ceux qui ont participé à ce projet!

Réalisations étudiants
Découvrez les travaux de nos étudiants en Architecture d’intérieur et Design Graphique.
Découvrir
échanges à l'international
Découvrez nos programmes d’échange internationaux sur un réseau de 61 pays !
En savoir plus
Stages & emplois
Déposez une annonce, cherchez ou trouvez des offres de stage et d’emploi.
Voir les offres
crossmenuchevron-down